Mullae-Gil
박한울 Studio A
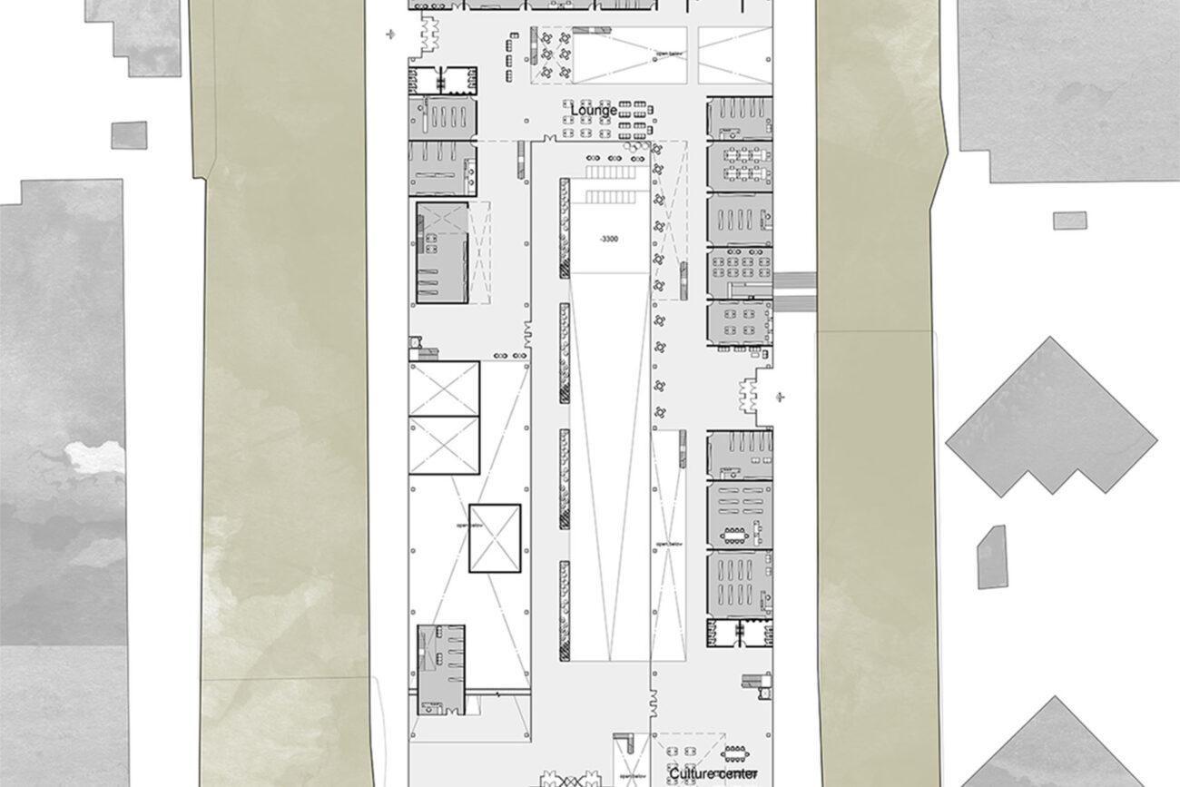
문래동이 가지는 도시의 인상은 낮은 건물과 재래시장, 좁은 골목길이 만드는 근대적 이미지와 높은 건물, 대형마트, 넓은 도로가 만드는 현대적 이미지가 이루는 대비가 크게 다가온다. 다양한 요소들의 양립과 산재 속에서 영등포의 과거를 대표하던 재래시장은 쇠퇴의 길을 걸으며 그 자리는 대형마트로 대체되어가고 있다. 그에 따라 설 자리를 잃어가는 문래동의 소상공인들을 위하여 . 현대와 과거가 공존하는 문래동의 특성을 유지하면서도 재래시장과 현대적 대형마트의 지향점을 결합하는 방식을 통해 새로운 마켓 공간을 제시하고자 했다. 문래를 이루던 조그만 마을의 볼륨과 원소들은 새롭게 재해석되어 ‘문래-길’에 자유로이 배치되고, 경사로는 수평적이던 대지에 수직적 볼륨으로 시민들을 위한 산책로가 된다. 열린 공간속에서 이용자들은 끊임없이 소통하며, 재래시장과 소상공인이 만드는 정을 느낄 수 있는 공간이 되기를 희망한다.









